<

Mercer Island Hillside House

A challenging site upon purchase, this home is positioned with impenetrable views of Lake Washington and Seattle. Overcoming steep slope, erosion, and height easement hurdles, the design allows for aging in place while taking advantage of the natural landscape in a modern residence.

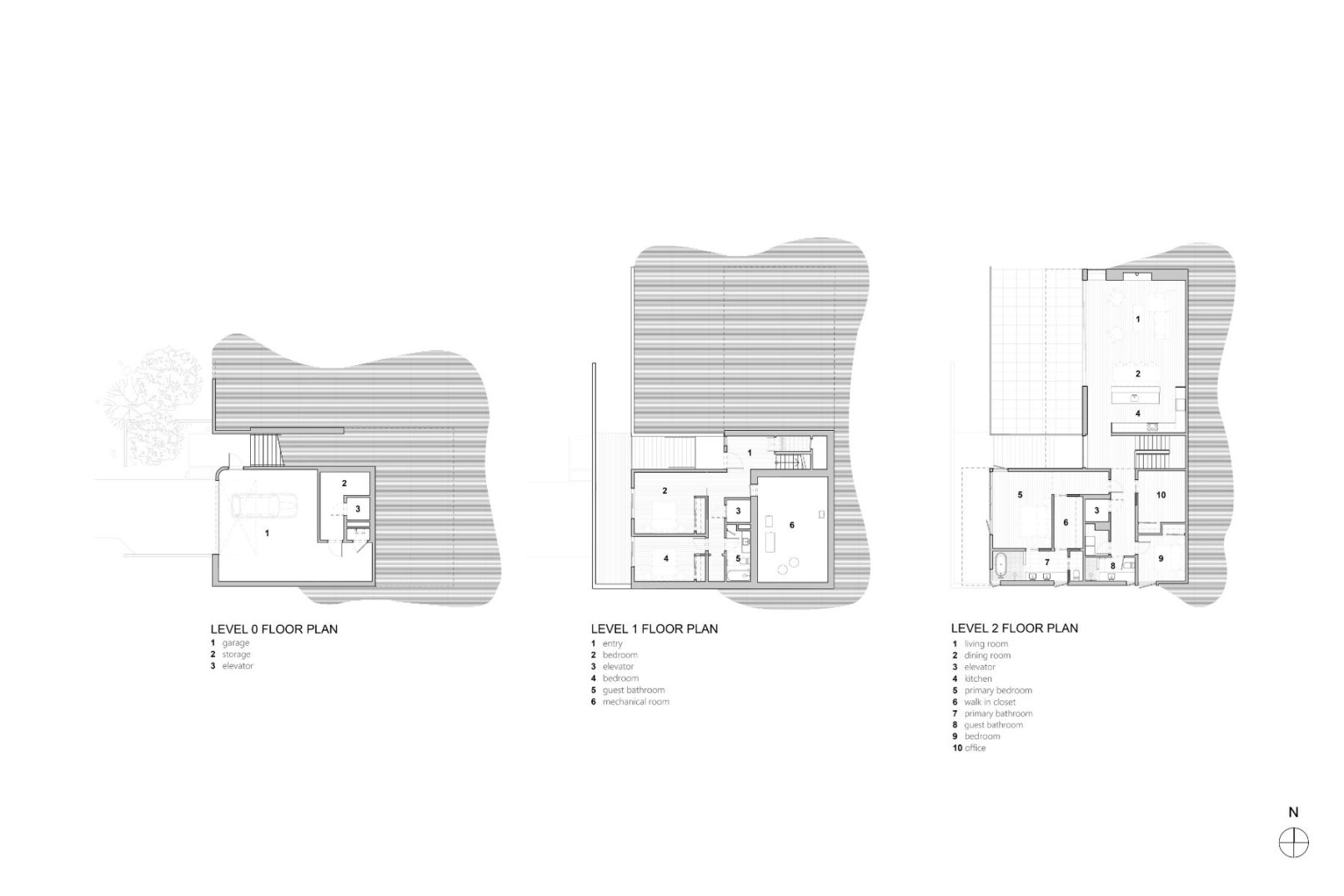
Sunken into the west face of Mercer Island, the home utilizes a subterranean garage and second-floor guest quarters as a podium to perch primary living spaces at the top of the site. This inverted living arrangement places the most used program where views are the strongest. Access to the house is provided by a carved concrete stair sheltered between the home and the upper courtyard. An elevator links the floors and allows for the homeowner to age in place despite the vertically challenging site. The upper floor features 14’-tall vaulted ceilings that give a sense of airiness and lightness in contrast to the buried entry and lower program. A ribbon skylight brings generous daylight into the back half of the upper floor, which is also partially sunken into the earth.