<

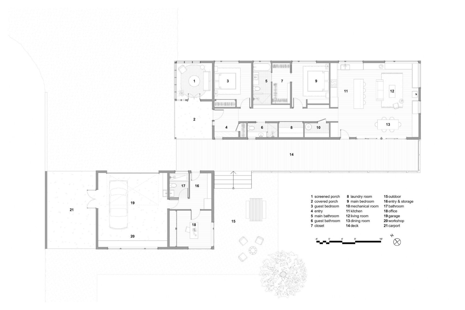
Fidalgo Island Sheds

  • Proposed Size
    1,536 House + 1,268 Garage & Carport + 1,816 Patio & Deck
  • Location
    Fidalgo Island, WA
  • Contractor
    Jerry McCool Fred Aberlman
  • Structural Engineer
    Todd Perbix
  • Civil Engineer
    Dale Herrigstad

Three sheds create a compound on Fidalgo Island for an Anacortes family.

Designed for a couple who wanted to settle down after years spent living on the road and at sea, the gable sheds evoke Scandinavian boathouses and local fishing piers. The sheds will create a home for the couple who are professional musicians, builders, avid fishermen, and free divers, not to mention health insurance specialists! The three sheds will shelter their various pursuits: from living to working, from making music to working on boats, and from processing fish and crab to storing necessary tools and equipment. We designed the structures to be both elegant and functional.

Under construction! We look forward to sharing progress photos in 2024.