<

Dyes Inlet Farmhouse

A 1930s remodel demonstrates the synthesis of old and new.

The comprehensive remodel of a brick farmhouse in Silverdale, Washington renews a sense of place and connection to its surrounding site. The renovation, along with a new boat bunker, is the first phase of a larger master plan. A new primary house is currently under construction while the renovated farmhouse will be reserved for visiting friends and family.

Read More

SITE

Located on a former oyster farm on Washington’s Kitsap Peninsula, the remodeled farmhouse is surrounded by rural landscape and waterfront views. The renovation anticipates site development and connections to come, a historical artifact that will help guide the future blueprint of the design.

 

PROGRAM

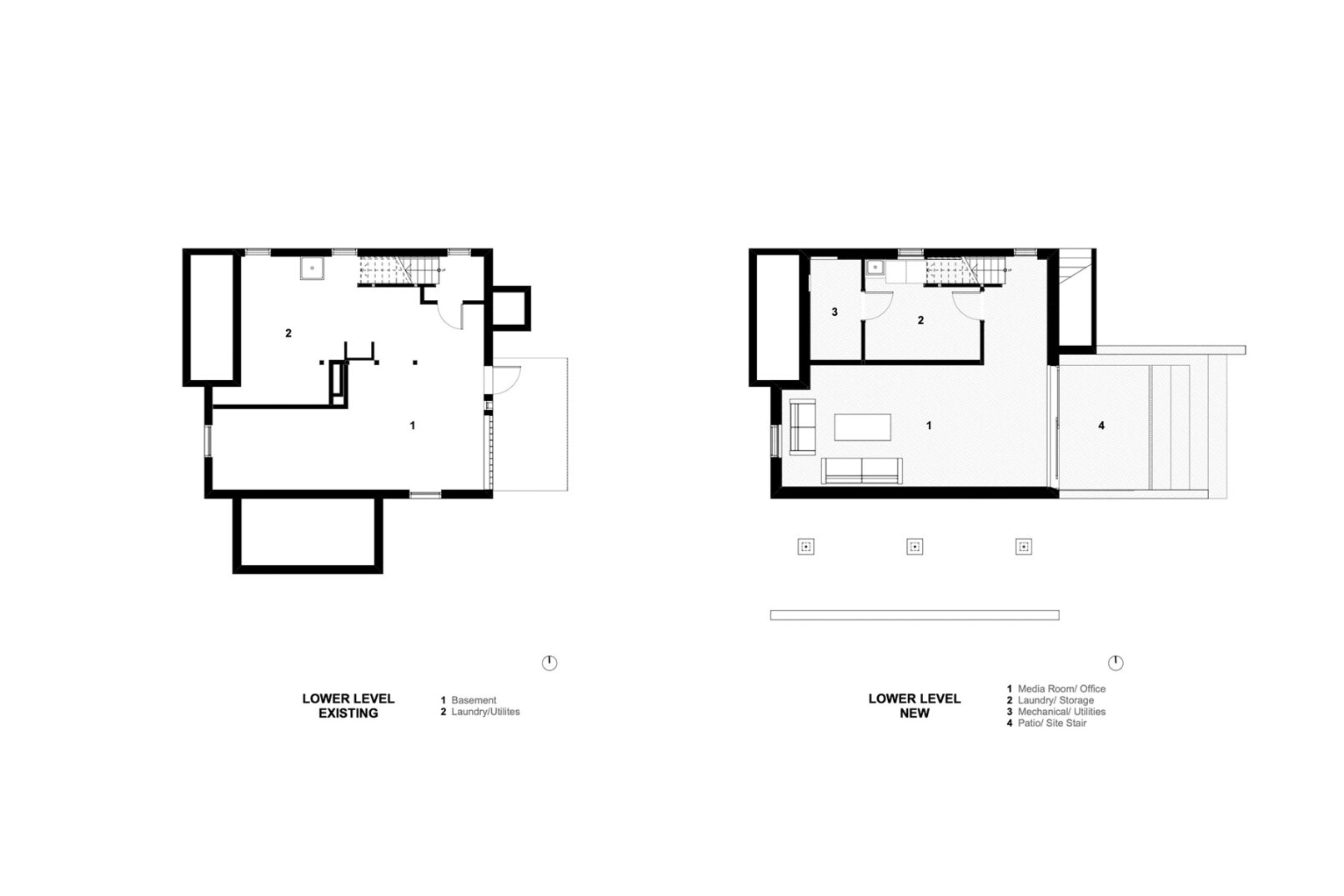
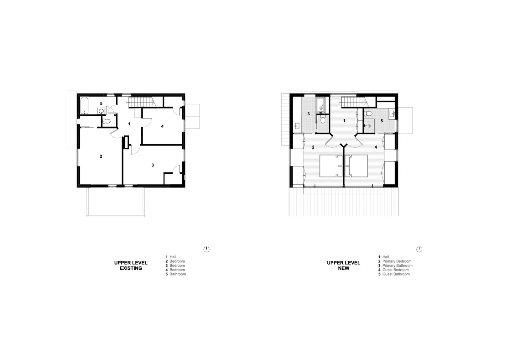
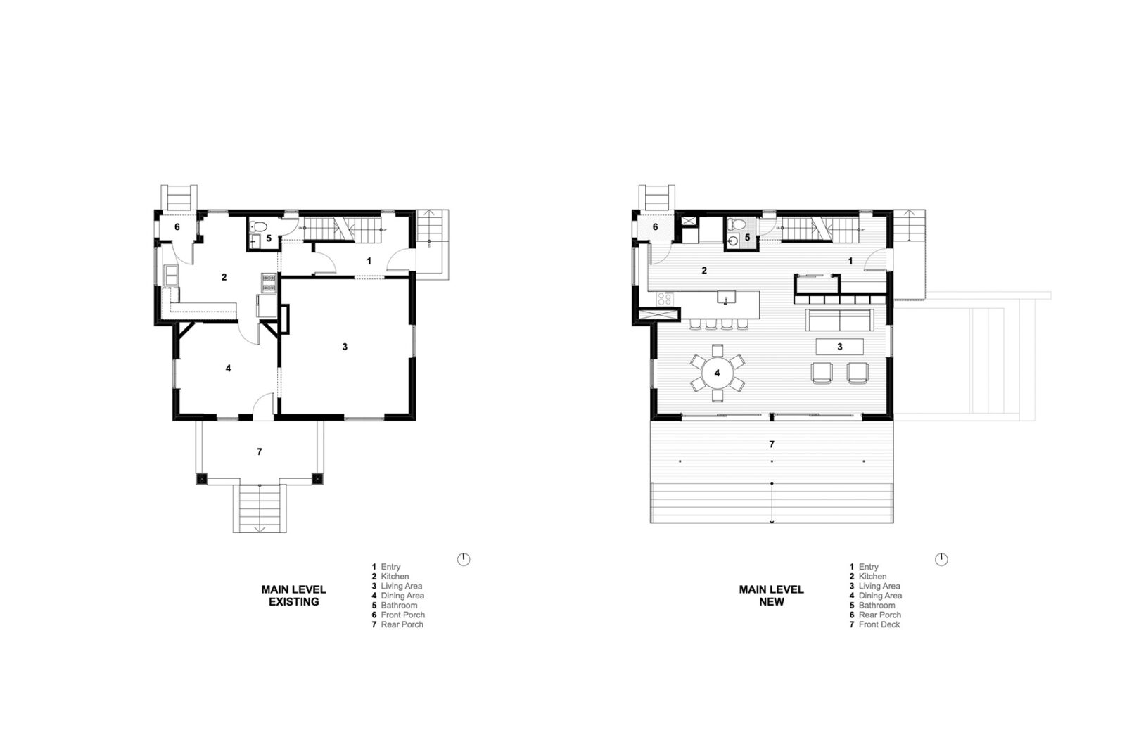
The existing floor plan was a collection of small rooms located around a central hearth, mostly shut off from views of Dyes Inlet. The unsalvageable fireplace was removed, allowing the main floor layout to be transformed into an open and airy living space. Strong and simple, a new gable roof integrates two new dormers on the second floor, one facing the water and the other the farmhouse orchard and garden. The second floor was re-planned to include two water-facing en suite bedrooms. A basement flex room accommodates the owner’s large extended family while a boat bunker provides privacy from adjacent properties and stores sculls and kayaks for use on Dyes Inlet.

 

DESIGN

The main design goal was to connect the house to the site without destroying its character and historical importance to the property. To achieve these often contradictory goals, the interior was completely re-designed while the exterior was left intact and nudged into the 21st Century. Careful thought was considered in the exterior details, highlighted in the preserved brick initials of the original builder, the large roof overhang covering a new waterfront deck, and the steel canopy above a reoriented entry. Existing openings were either infilled with new brick, leaving the old opening visible and intact as a palimpsest of the original structure—or replaced with new windows and incorporated into the design—featured in the bedrooms’ window seats and the east-facing bathroom’s casework bench. Purposeful interior finishes and Scandinavian-inspired materials give the home character throughout. Not far away, a half-buried boat bunker is constructed with concrete walls and a green roof—connecting the structure to the site and referencing the coastal defense bunkers seen around the Kitsap Peninsula.