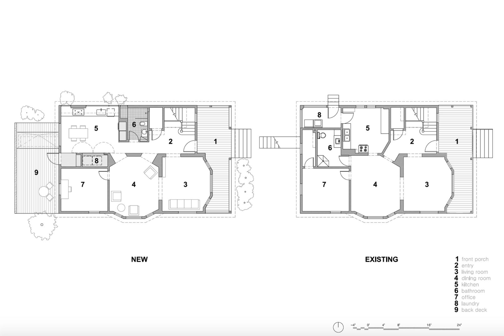
The existing geometry was manipulated and built upon to subtly introduce a new kitchen, bath, laundry and outdoor space that compliment the home’s original bay windows, angled walls and oak floors.
A 1914 craftsman home in Seattle’s Magnolia neighborhood.
To rework the main floor to improve the primary flow of space and introduce a new kitchen, bath, laundry and backyard connection.
The owners saw potential in this traditional craftsman home when they bought it in 2013. The Seattle family had the intention of restoring the home’s original details while also updating the traditional layout on the main floor. The existing geometry was manipulated and built upon to subtly introduce a new kitchen, bath, laundry and outdoor space that compliment the home’s original bay windows, angled walls and oak floors. On the exterior the contemporary window configurations are trimmed out with the hundred-year-old home’s classic white trim and bead board to blend the new openings with the traditional structure. The insertion of modern functional spaces, improved flow within and through the house, and integration of subtle original details resulted in a strategic modern intervention that sensitively assimilates itself within a classic home.