<

Madison Park Ranch House

The remodel of a 1959 ranch-style house in Madison Park.

After a lifetime of remodeling, the Northwest Contemporary home deserved a holistic revitalization to honor its original spirit and make it suitable for contemporary living. The primary goal was for the design
work to live within the existing volume and create a more integrated result that bridges the past and future. The palette includes concrete floor tiles, bead blasted ss plate, brushed oak, and quartzite slabs. A fun collaboration with engaged owners and a skillful build out by Ainslie-Davis Construction.

Read More

Site

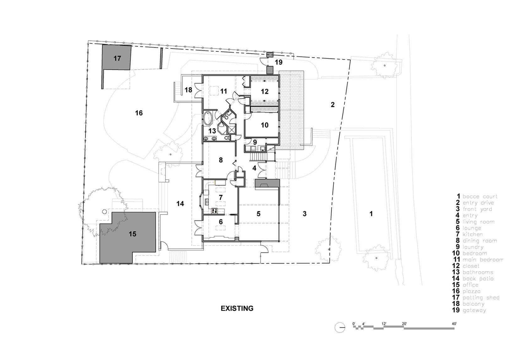
An 8,500 square foot lot in Seattle’s Madison Park neighborhood.

Program

Undo layers of remodeling to revive the home to a cohesive and appropriate aesthetic. Design naturally landscaped areas, improve circulation, and provide new outdoor living spaces.

Design

This Northwest Contemporary home had seen a lifetime of remodeling and deserved a holistic revitalization to honor its original spirit and make it suitable for contemporary living. The compartmentalized floor plan was opened up, connections between spaces were enhanced, and the bathrooms were reworked to simplify and improve functionality. Materials are used that respect and coordinate with the home’s original palette, and also provide a timeless and durable aesthetic for the future. Expressed aggregate concrete tiles serve as the main interior flooring, borrowing the appearance of the new exposed aggregate concrete pavers that provide the walking surfaces through the yardscape. These paths and steps gently engage with the new natural landscaping, gradually connecting the home to a series of private outdoor spaces around the property. Large sliding doors open up the new kitchen to an expansive deck offering views of natural plantings and a lower fire pit patio. These outdoor living spaces carefully extend their way through the yard among mature trees and are further established by concrete walls to provide necessary structure and privacy.