<

Lark House

Originally designed by prominent Seattle architect Al Bumgardner, this 1958 mid-century house was reimagined to reflect the storied lives of its new inhabitants while holding reverence to its architectural significance.

Read More

SITE

Located in West Seattle, the house sits atop a cliff with sweeping views of Vashon Island, the Olympic Mountains, and Puget Sound. 

PROGRAM

Bumgardner left an undeniable imprint on the Seattle architecture scene throughout his career, with work receiving regular honors from the Seattle AIA and catching the attention of notable architecture and design publications. Bumgardner’s work includes Seattle’s Waterfront Park and the conversion of Queen Anne High School into apartments. He also led the drafting of the ordinance creating Pioneer Square as the first historic district in Seattle. 

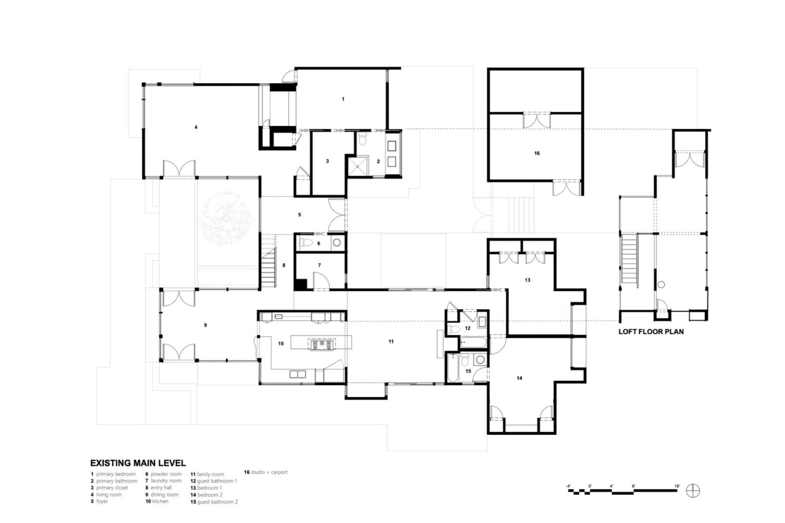
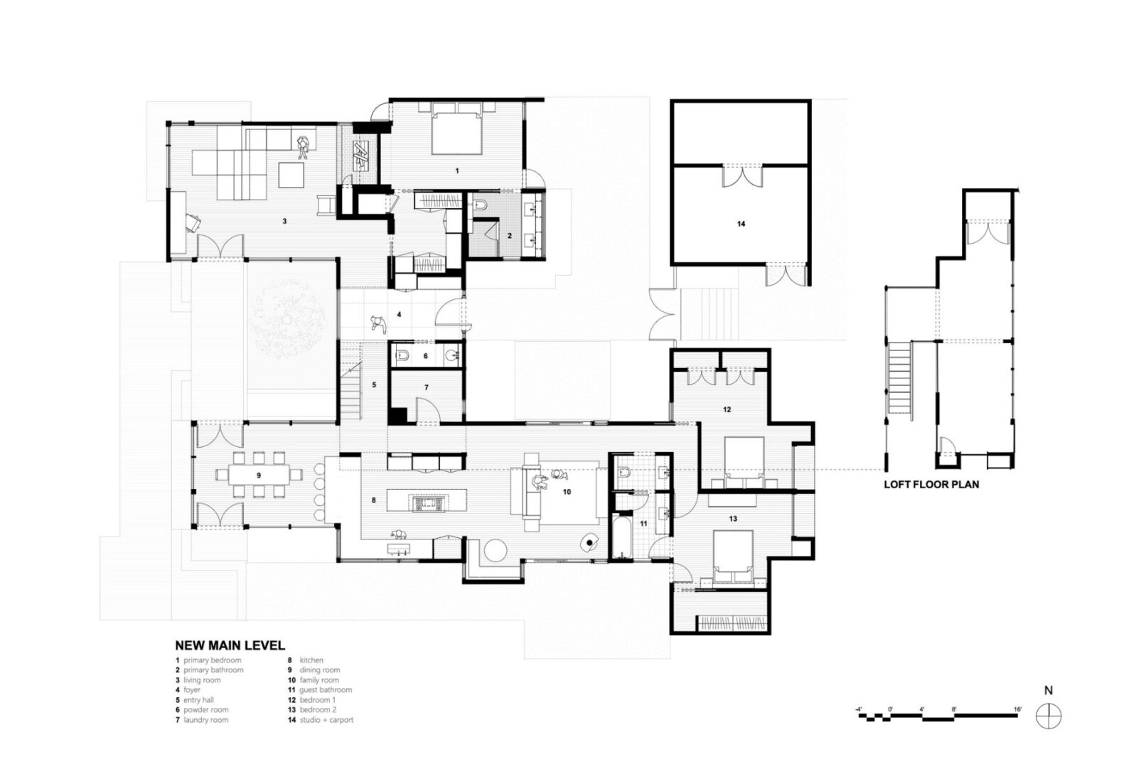
In undertaking the renovation of a residence with architectural significance, it is essential to consider the present condition, the original architect’s vision, and how the existing design can adapt to modern requirements and the unique personalities of new owners. This approach necessitated a nuanced assessment of each space, calibrating the scope of interventions to respect and enhance the existing structure. In certain areas, minimalistic alterations sufficed, while others demanded more comprehensive changes. These modifications were not only about preserving the original architecture but also about seamlessly integrating it into the fabric of contemporary living and the distinctive identity of its new owners, ensuring the home continues to be relevant, functional, and personal in the 21st century.

DESIGN

In reimagining the house, emphasis was placed on openness and functionality. Interior spaces were restructured to harness natural light and frame scenic vistas, echoing the original design ethos of Bumgardner. This modern reinterpretation honors his vision while adapting the home to contemporary living needs.

The entrance was transformed with a new front door, bespoke casework, and an elegantly wallpapered powder room. In the kitchen, a wall was removed to enhance the flow and connection with Puget Sound. The blend of custom cabinetry and thoughtful woodwork merges the original architecture with the newly inserted elements. A juxtaposition of white oak against Bumgardner’s palette of VG-stained fir and cedar creates a harmonious balance of materials and textures. Additional features, such as a Nero Marquina Marble island, a walk-up coffee bar, and a built-in breakfast nook, enhance the kitchen’s functionality.

An overly open primary bedroom was addressed by reconfiguring its entrance through an enlarged walk-in closet. The two-way fireplace connecting to the living room was restructured, finished with glazed brick tile, and visually separated from the bedroom. Strategically placed interior relights and mirrors ensure privacy and a continued emphasis on light. The ensuite bathroom was thoughtfully reworked and refreshed with custom casework and a striking black and white tile design.

On the south end of the house, two existing bathrooms were reconfigured into one with a pocket door separating the toilet from the shower room. The bathroom connects to a children’s room on one end and a communal hallway on the other, eliminating the need for a guest bathroom while providing privacy for the attached bedroom. Interior relights and mirrors gang together with the existing skylights to extend natural light throughout the space.

From playful tile, flooring, and wallpaper choices to new white oak and vertical-grain fir elements, the material palette respects Bumgardner’s original design while infusing a personal touch. This is further accentuated by carefully selected furnishings and art, drawing inspiration from the owners’ past lives abroad and their penchant for bold, expressive decor. The home, in its current form, stands as a testament to its history, rooted in Bumgardner’s vision while evolving to vividly capture the unique narrative of its inhabitants.