<

Bridle Trails Remodel

The remodel of a 1967 architect-designed home located on a lush site in Kirkland’s Bridle Trails neighborhood.

The new home seeks to exploit the site’s potential by creating open, airy spaces with controlled views, transforming the outdated residence into a home more suitable for the modern family.

Read More

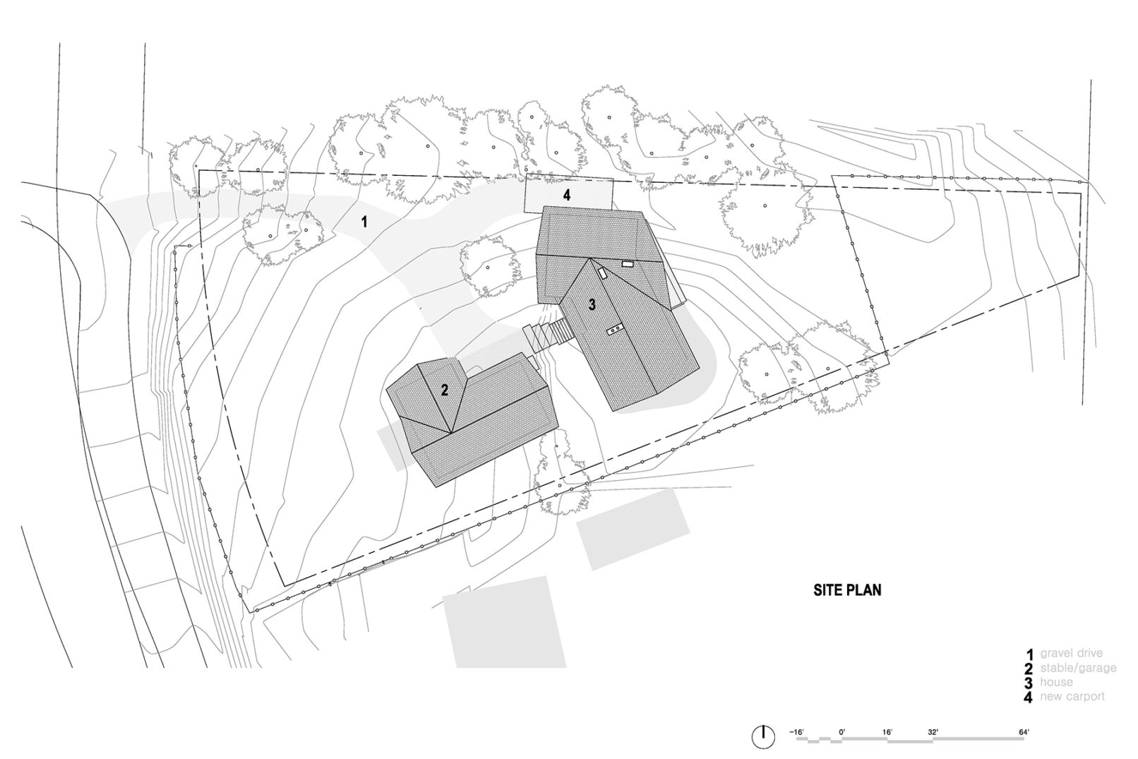
Site

A 1967 architect-designed home located on a lush site in Kirkland’s Bridle Trails neighborhood.

Program

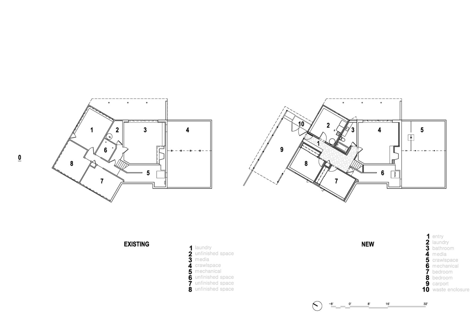
An overgrown site, outdated kitchen, compartmentalized bathrooms, and unfinished basement were some of the big concerns but most of all, the cluttered floor plan and oddly placed partition walls made the home too convoluted for modern families.

The remodel seeks to exploit the site’s potential by creating open, airy spaces with controlled views, transforming the outdated residence into a home more suitable for the modern family.

Design

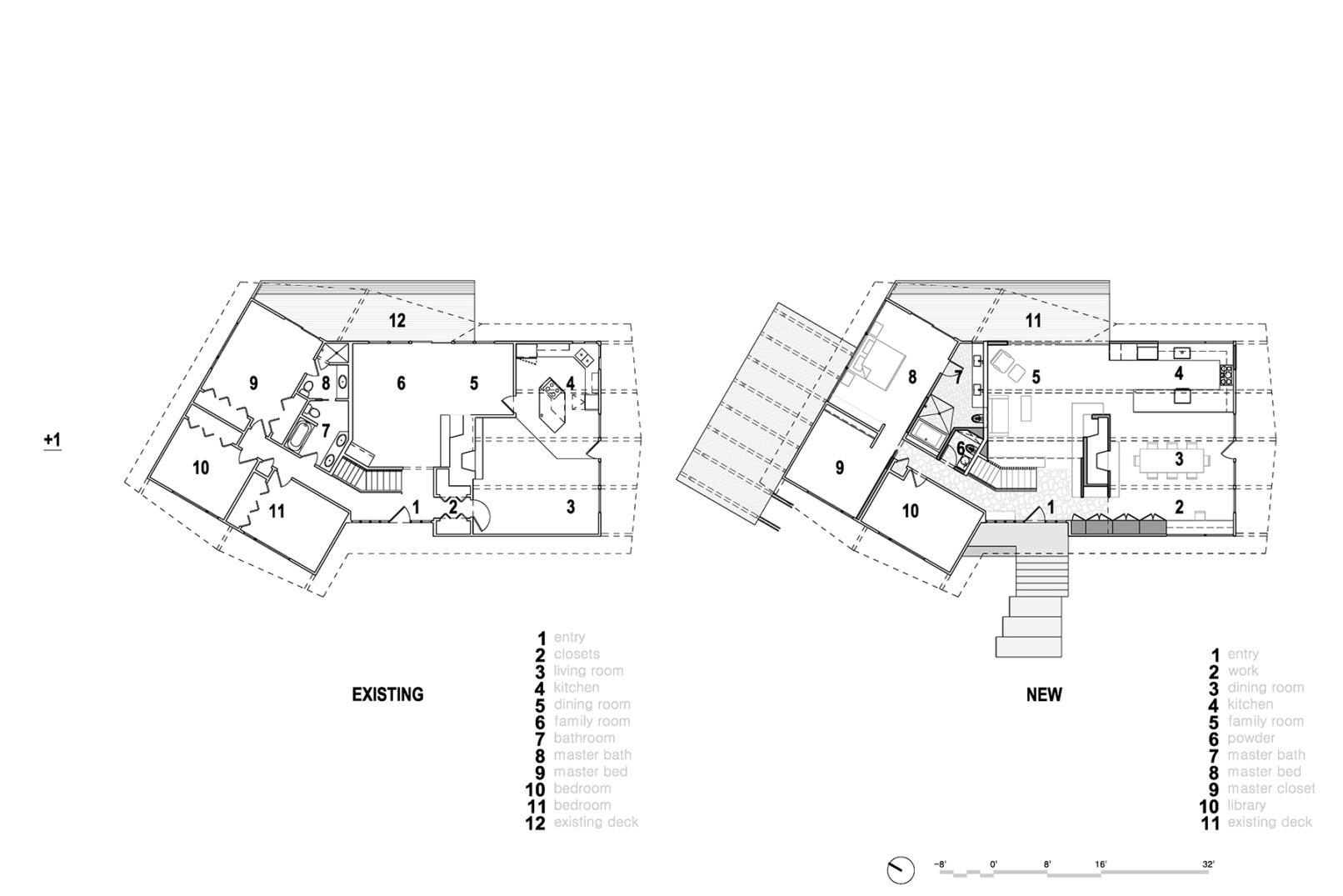
Recognizing the potential in the 2,970 SF house, we wanted to leverage as much of the existing framework volume as possible; seeking to transform the spaces through selective improvements and targeted interventions. Eliminating walls & shifting the corridor in the basement helps simplify and clarify the circulation pattern, while providing more direct access to the new carport & site to the north. By relocating the spatially inefficient mechanical room, a new bathroom could be inserted at the elbow in the plan, allowing the kids to have a bathroom of their own.

On the main floor, walls adjacent to the fireplace were removed to allow for a true open plan with a central hearth. This also allowed for a larger kitchen, formal dining room, and a more prominent living space overlooking the lush backyard. Vaulting the ceiling in those spaces enhanced the newfound open plan. Retaining a more humble entry soffit negotiates the lower ceiling height in the hall, which now terminates into an expansive master suite with private deck access.

The palette blends mid-century motifs like flagstone flooring, wood panels, and slat screens with more contemporary materials like concrete brick, Milestone, and Douglas Fir. Locally sourced Douglas Fir gives the casework and paneling a contemporary, Pacific Northwest feel. Milestone plaster creates a truly unique atmosphere in the bathrooms while also avoiding fussy tile work.