<

Alder House

A reimagined 1990s house updated with modern design and Passive House strategies that embraces its natural setting.

Nestled in Seattle’s Denny Blaine neighborhood, this three-story post-modern house sits on a private wooded site near the Arboretum. The renovation enhances the 1990 design with energy-efficient updates and reimagines the structure’s relationship to its tranquil surroundings.

Read More

SITE

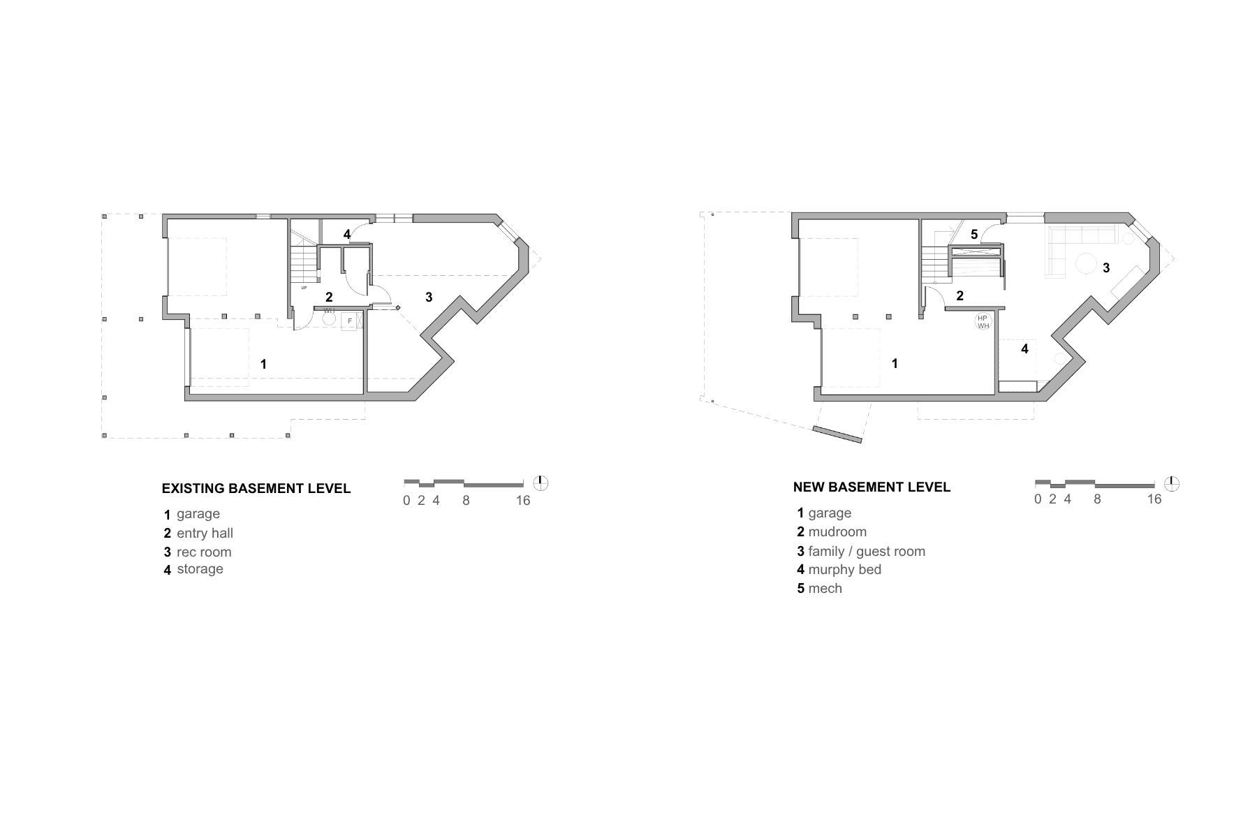
Set on a sloping lot in Seattle, the house is surrounded by clusters of alder trees and mature poplars. From the east, an oblique path winds through the trees to an elevated deck that bridges the ground and the front porch. Natural light filters through the dense greenery to the south. The ground slopes westward, exposing the lower level garage entrance accessed via the alleyway. 

PROGRAM

The owners envisioned their home as a modern, energy-efficient retreat that stays connected to its natural setting. Their priorities included reconfiguring the kitchen to serve as the central gathering space and improving the flow between living areas. Additional goals were enhancing privacy in the primary suite and strengthening the indoor-outdoor connection through restructured openings and a rebuilt deck. Inspired by The Sea Ranch’s ethos of simplicity and harmony with the environment, the design prioritizes clean lines, natural materials, and thoughtful details.

DESIGN

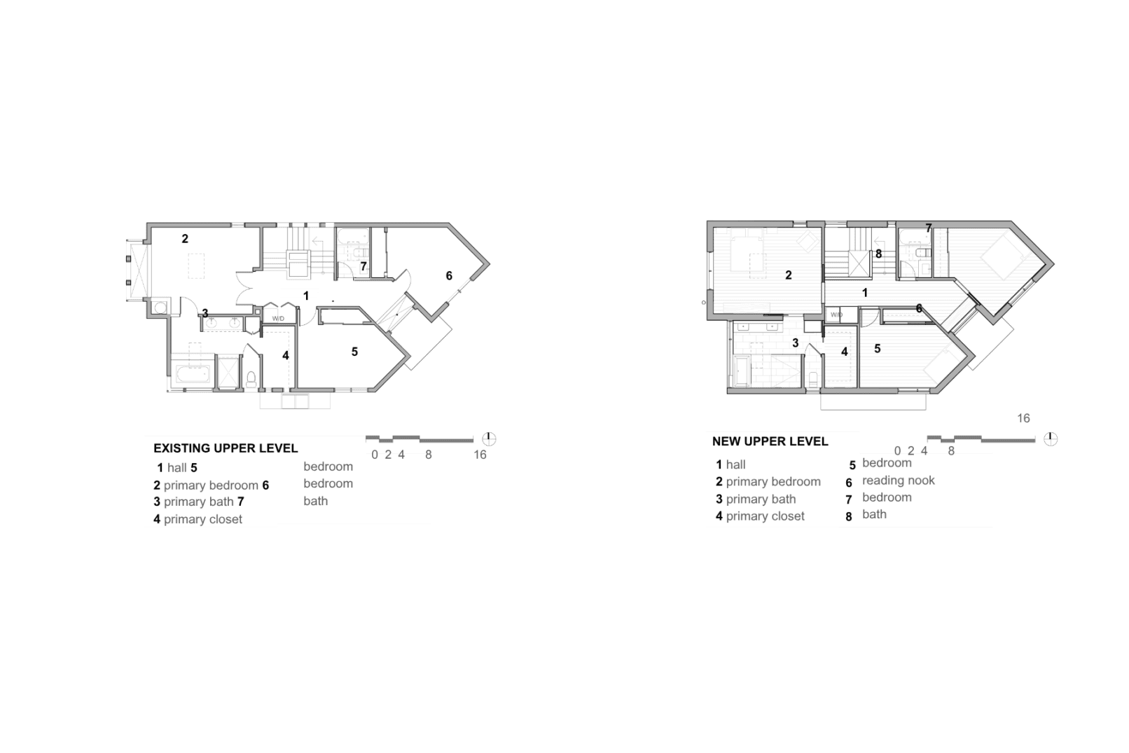
Originally built in 1990, the 2,820-square-foot structure featured bright red cladding, curved walls, gridded window compositions, and tiered cornices emblematic of post-modern design. The remodel blends contemporary updates with custom ash built-ins to unify interiors, maximize space, and improve functionality.

The kitchen was expanded and reoriented to the west by removing the small den near the entry and adding a small bump-out. The result is a spacious and functioning hub with a central island and open connections to adjacent living spaces. Floor-to-ceiling bifold and sliding doors flood the interior with light and create seamless access to the redesigned west-facing deck, enhancing indoor-outdoor living.

The primary suite was transformed for greater privacy and reoriented to frame views of the surrounding poplars. New ribbon windows, vertical tile, and built-in storage introduce a modern aesthetic while maintaining functionality. Crisp detailing throughout and floor-to-ceiling tile, casework, privacy glass, and mirror emphasize verticality and expansion. 

On the exterior, the cornice was removed to clarify the volumetric expression. The open-gap cedar cladding and COR-TEN accents nod to the natural, weathered materials at The Sea Ranch. The redesigned deck incorporates a custom COR-TEN planter and bench detailed to add privacy, providing a social space that extends the interior’s connection to the forested garden below. 

PERFORMANCE

The house targets net zero energy capability through a deep energy retrofit, implementing Passive House strategies to greatly reduce operational energy, and includes on-site solar generation.

  • Rooftop Solar Array (8.91 kw, Power Offset – 87%)
  • 2” continuous exterior insulation
  • Aerobarrier air sealing (<1.0 ACH @ 50 Pa) 
  • High-efficiency Mini-split Heat Pump HVAC
  • Balanced Ventilation with Heat Recovery
  • High-efficiency Heat Pump Water Heater
  • Whole House Electrification
  • Electric car chargers
  • WaterSense certified fixtures