<

Burke Remodel

  • Square Footage
    1,500
  • Location
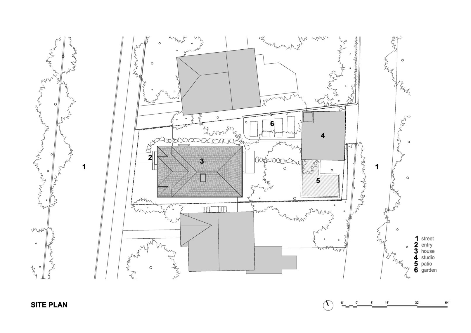
    Seattle, WA
  • Structural Engineer
    Todd Perbix
  • Photography

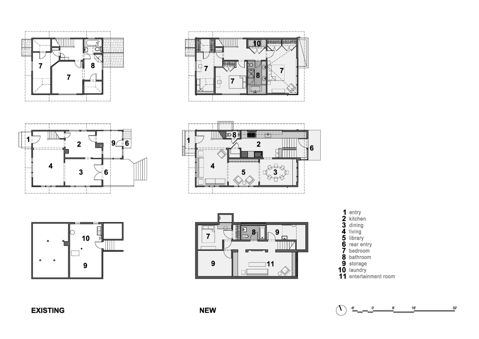
The holistic remodel of a traditional four square home in Seattle.

The homeowners of this 1930s north Seattle home fell in love with the original details. They asked us to preserve the character, while updating the floor plan and interiors to accommodate modern living.