<
Projects
Commercial
Adaptive Reuse
Workspace
Food and Drink
Residential
Houses
High Performance
Remodels
Landscape
Studio
Special Projects
People
Contact
Press
Projects
Commercial
Residential
Studio
About
People
Shed Talks
Special Projects
Contact
Press
Projects
Commercial
Residential
Studio
About
People
Shed Talks
Special Projects
Contact
Press
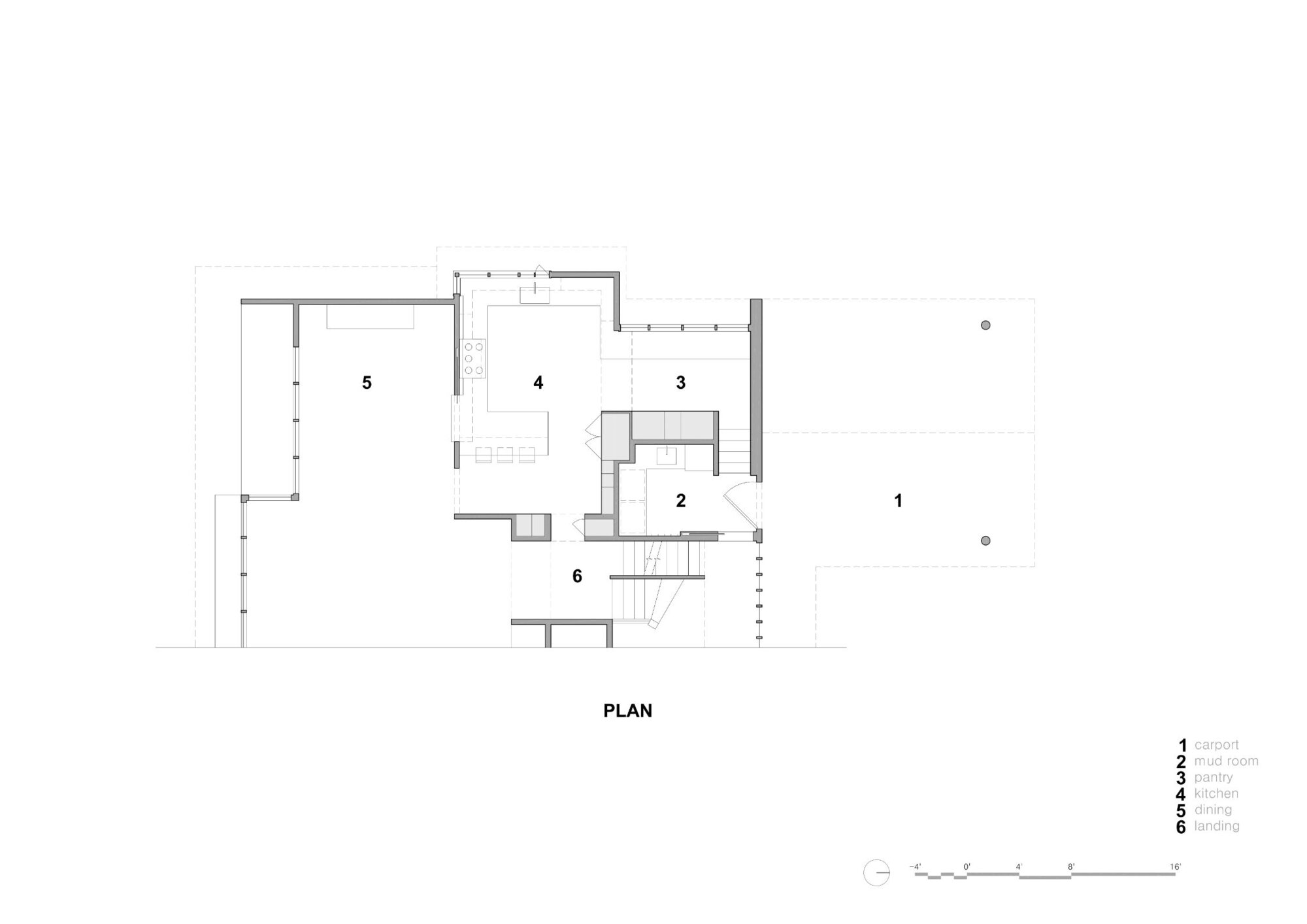
seward park
Share your thoughts
Cancel reply
Comment
*
Name
*
Email
*
Website